
こんにちは!
ツナグ不動産事務所の松永です。
土地の境界がどこにあるのか分からなくて困っていませんか?
境界標・印とは、簡単に言うと「ここがあなたの土地の端っこですよ」ということを示す目印のことです。
「境界杭(きょうかいくい)」や「境界標(きょうかいひょう)」と呼ばれる目印を見つけることで、あなたの土地がどこまでなのかを確認することができます。
この記事では、境界標・印がどこにあるのか、どうやって探せばいいのか、なかった場合の対処法を、初心者の方にも分かりやすく解説していきます。
境界標・杭が見つからない時の対処法
「境界標を探したけれど、どこにも見つからない…」 「本当に境界杭あるの?」
そんな不安を抱えている方も多いのではないでしょうか。実は、境界標・杭が見つからないケースは決して珍しいことではありません。長年の間に紛失したり、工事で撤去されたり、様々な理由で境界標が見当たらない土地は数多く存在します。
まずは、境界標・杭が見つからない場合の境界線をここかな~?と推測する方法と、具体的な対処法をわかりやすく解説します。
境界線ここかな~?と推測する方法
境界標が見つからない場合は、いくつかの手がかりから、おおよその境界線を推測してみましょう。
- 「配置図」を確認する。
- 土地を購入した時の「重要事項説明書」「契約書」を確認する。
- 「測量図」を法務局で取ってみる。
- 「公図」を法務局で取ってみる。
- ご近所さんの境界を確認してみる。
- ご近所さんに聞いてみる。
では、ここから詳しく一つずつ説明していきます。
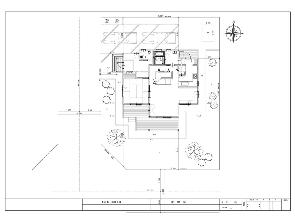
①建築時の図面『配置図』を確認する
配置図とは
配置図(はいちず)とは、建物を建築する際に作成される図面の一つで、「敷地のどの位置に建物を建てるか」を示した図面です。
配置図には、建物の位置だけでなく、敷地境界線や隣地との距離も記載されている場合があるため、境界標を探す重要な手がかりとなります。

配置図どこにある?
新築時の図面を探す
家を建てた際の図面一式の中に配置図が含まれています。平面図や立面図と一緒に「配置図」が入っています。以下の場所を探してみてください。
- 建築会社からの図面一式:契約時に受け取った設計図書の中
- 建築確認申請書の副本:検査機関に提出した書類の控えの中
- 住宅ローンの書類:融資申請時に提出した図面の中
- 家の設計図をまとめたファイル:建築時の記録として保管されているファイル
配置図に記載されている境界情報
境界線からの距離
配置図には、建物が境界線からどれくらい離れているかを記載されている可能性があります。
②土地購入時の『契約書』や『重要事項説明書』を確認する
重要事項説明書とは
重要事項説明書(じゅうようじこうせつめいしょ)とは、不動産を購入する際に不動産会社が作成する説明書類のことです。略して「重説(じゅうせつ)」と呼ばれることもあります。
この書類には、土地の境界に関する重要な情報が記載されている場合があり、境界標を探すための手がかりとなります。

契約関連書類の保管場所
土地や建物を購入した際の書類は、以下の場所に保管されていることが多いです。
- 不動産購入時のファイル:「不動産関係」「家の書類」などのラベルが付いたファイル
- 金庫や貴重品保管庫:権利証などと一緒に保管
- 銀行の貸金庫:住宅ローンの書類と一緒に保管
重要事項説明書の境界関連記載事項
売買契約書や重要事項説明書には、以下のような境界に関する記載があるかもしれません。わたしの知っている限りでは、特約事項に書かれているパターンが多いですよ。
【特約事項例】
- 「東側所有者との境界は、ブロックの中心となる。」
- 「対象不動産東側の塀は、隣接地(地番:◯番◯)所有者との共有である。」
売買契約書の境界関連条項の確認
売買契約書には、売主の境界明示義務について以下のような記載がある場合があります。
「売主は、買主に対し、本物件引渡しまでに隣地との境界を現地で明示するものとする。」
この記載がある場合、物件の引渡し時に売主から境界の説明を受けていると思われます。その時の記録や写真があれば確認してみてください。
③法務局で『測量図』を取得する
地積測量図とは何か
地積測量図(ちせきそくりょうず)とは、簡単に言うと「あなたの土地の図面」のようなものです。土地の面積や境界線の位置が数値で記録された公的な図面で、法務局(ほうむきょく)という国の機関で保管されています。
法務局とは、土地や建物の登記(正式な記録)を管理している国の役所のことです。全国各地にあり、土地に関する様々な書類を取得することができます。
活用方法:図面上の寸法を実際の土地で測定して境界線を推測
記載内容:土地の形状、面積、境界点の位置

地積測量図の入手方法
Step1:最寄りの法務局を探す
- 検索方法:「法務局 (市町村名)」でインターネット検索 「法務局 管轄のご案内」
- 受付時間:平日の午前9時~午後5時(土日祝日は休み)
- 持参するもの:手数料(測量図1筆450円)、地番がわからない場合は「固定資産税通知書」や「権利書」
※地番(ちばん)は、住所とは異なる土地の番号です。地域により地番と住所が異なったり、同じだったりします。
地番がわからない場合は、固定資産税の納税通知書や権利証を持参すれば教えてもらえます。
もしくは、窓口で「住所しかわからないのですが…」と聞いてみてください。
窓口で調べてくれるか、ブルーマップという地番が載っているゼンリン地図などで調べます。
Step2:窓口での申請
法務局の窓口で「地積測量図を取得したい」と伝えてください。
Step3:図面の確認と活用
取得した地積測量図には以下の情報が記載されています。
- 土地の形状:実際の土地の形を描いた図
- 寸法:各辺の長さ、㎝まであるものが多い。古いと単位が尺間法の場合も!
寸法が入ってないのもあります。 - 面積:土地の面積
- 境界点:境界標の位置
④地積測量図がない場合 は『公図』
古い土地(昭和40年代以前に登記された土地など)では、地積測量図が作成されていない場合があります。その場合は「公図(こうず)」という、より簡易な図面を取得することができます。

公図は地積測量図ほど正確ではありませんが、隣地との大まかな位置関係や土地の形状を把握することができます。
図面というより、地図に近いものになります。
寸法も面積も入っていないので、自分で、三角スケールで計ります。
図面の下欄に縮尺がかいてあるので、それを参考に三角スケールで距離を測りましょう。
元の図面も大まか、さらに三角スケールも大まかなので、どうしてもざっくりの数字になります。
こちらも法務局にいって取得ができます。手数料(公図450円)です。
⑤『ご近所さんの境界標』から推測
近隣ご近所さんの境界標から推測してみましょう。
大きな分譲地や団地では、同じ様に区画割がされている場合が多いです。
お隣さんや裏の家、お向かいさんの境界がどうなっているのか、散歩しながら杭や印があるかをチェックしてみましょう。
もし、ご近所さんのブロック塀の真ん中に境界が入っていれば、ご自分の土地の境界もブロック塀の真ん中である可能性が高くなります。
⑥『隣地所有者さんと確認』しましょう
境界線がここかな~?と推測したら、以下の方法で確認しましょう。
事前の準備
- 推測した境界線の根拠を整理
- 地積測量図や公図を準備
- 境界標の探索記録をまとめる
協議の進め方 「境界標を探したのですが見つからず、測量図をもとに境界線を推測してみました。一緒に現地で確認していただけませんか?」
ここまでは、おおよその位置の見つけ方です。
ここからは、専門家「土地家屋調査士さん」の依頼方法をご紹介します。
専門家への相談タイミング
「自分で境界標を探してみたけれど、やっぱりよくわからない…」 「隣の人と境界線について意見が合わない…」 「専門家に相談したいけれど、どうすればいいの?」
そんな時は、専門家(土地家屋調査士)への相談を検討してみてください。
専門家相談が必要な場合
- 隣地所有者との意見が一致しない
- 推測した境界線に確信が持てない
- 土地の売買や建築を予定している
そんな時に頼りになるのが「土地家屋調査士(とちかおくちょうさし)」という専門家です。
土地家屋調査士とは、簡単に言うと「土地の境界線を正確に調べて、きちんと決める専門家」のことです。なかなか見かけないと思います。そこで探し方をご紹介します(^.^)

探し方 その1…各都道府県の土地家屋調査士会
公式な検索方法
各都道府県には「土地家屋調査士会」という組織があり、ここで地域の土地家屋調査士を探すことができます。
「静岡県土地家屋調査士会」
探し方 その2…知人・専門家からの紹介
- 不動産会社…土地取引の経験豊富な不動産会社なら、信頼できる土地家屋調査士を知っている
- 建築会社・工務店…新築やリフォームで境界確定の経験がある会社
- 司法書士・行政書士…土地取引で連携している土地家屋調査士を紹介してもらえる
- 近隣住民からの情報 …近所で境界確定を行った経験のある方からの紹介も有効です。実際に仕事を見ている分、信頼性の高い情報が得られます。
依頼の手順と流れ
ステップ1:初回相談・現地調査
ステップ2:隣地所有者との境界立会い、測量
ステップ3:境界標の設置と成果品の作成
ステップ4:登記手続き(必要な場合)
地積更正登記:測量の結果、登記されている面積と実際の面積が異なる場合に実施します。
費用の目安
一般的な費用相場
住宅地:50万円〜100万円
費用に影響する要因
- 土地の面積:広いほど費用が高くなる
- 境界の数:隣接地が多いほど費用が高くなる
- 現地の状況:測量が困難な場所は費用が高くなる
国土調査・地積調査
ちょっといい話なんですが、「国土調査・地積調査」ってものがあります。
「地籍調査」とは、「国土調査の一つ」として実施されるものです。
それは、
主に市町村が主体となって、土地の所有者、地番、地目を調査し、境界の位置と面積を測量する調査です。
費用は、すべて国・県・市町村事が負担しますので、個人に負担を求めることはありません。
しかも、地籍調査が行われれば、境界や面積などの土地に関する登記の情報が正確なものに改められます。
万が一、地震や洪水などで境界が分からなくなった場合でも、その情報をもとに境界を復元することができます!
土地境界をめぐる紛争を未然に防止できるばかりではなく、不動産の売買も円滑になるし、土地の保全を図ることができます。
っていいことばかりの「地積調査」なんですが、地域によってはほぼ進んでいない状況です。
進捗状況を見てみましょう。
- 静岡市…3%
- 藤枝市…8%
- 焼津市…51%
- 富士市…7%
- 吉田町…100%
地積調査は、市町村が主になり、計画を立てていきますので、個人の希望で行ってもらえません。
いつ行われるかは、はっきりしませんので、
境界の位置がわからない、もめているなど、早く解決したい場合は、個人で土地家屋調査士に依頼することをおススメします!
境界標・印を探す前に知っておきたいこと
境界標・印には種類がある
境界標・印には、大きく分けて以下のような種類があります。
1. コンクリート杭

- 白いコンクリート製で、地面から10~15cm程度出ている
- 上部に「境界」や「境界点」と刻印されていることが多い
2. 金属プレート

- 一般的に使われる
- 直径2~3cm程度の小さな金属の円盤
- 3㎝四方程度の金属の四角のものもある
- アスファルトやコンクリートに埋め込まれている
3. プラスチック杭

- 軽量で設置しやすいのが特徴
- オレンジ色や黄色など、目立つ色をしていることが多い
4.ペンキ

・赤や白、黄色のペンキが使われる
・地面に切込みをいれた所にペイントされている
・塀の上など杭が打てない場所にある
5. 石杭

- 昔から使われている伝統的な境界標
- 自然石や切り石を使用
- 古い住宅地でみられる
時間の経過で見つけにくくなることも
境界標・印は長年の間に、以下のような理由で見つけにくくなることがあります。
- 草木に覆われてしまった:雑草や低木が成長して隠れている
- 土に埋もれてしまった:雨や風で土砂が堆積し、地面の下に隠れている
- 破損や紛失:工事や自然災害で壊れたり、なくなったりしている
- アスファルト舗装で覆われた:道路工事などで上からアスファルトが被せられてしまった
境界標・印の一般的な設置場所
境界標・印は、土地の角(かど)や境界線が変わる場所に設置されるのが基本です。具体的にどこを探せばいいのか、場所別に詳しく見ていきましょう。
隣地との境界線上
住宅密集地の場合 お隣の家との間には、境界標・印がある場合が多いです。特に以下の場所を重点的に探してみてください。
- フェンスやブロック塀の継ぎ目:境界線上にフェンスが建てられていることが多い
- 植え込みの間:生垣の根元付近
- 駐車場の端:隣地との境にある駐車場の角
具体例:隣の家との間に高さ1.5mのブロック塀がある場合、そのブロック塀の両端(道路側と奥側)に境界標が設置されている場合があります。




道路との境界
道路に面している部分 あなたの土地が道路に面している場合、以下の場所を探してみてください。
- 歩道と車道の境目付近
- 側溝(そっこう)の端:道路脇の排水溝の近く
注意点:道路境界の境界標は、アスファルトに埋まっていることがあります。よく見ると、アスファルトの中に小さな金属の円盤(鋲)が埋め込まれているのを発見できるかもしれません。
特殊な地形での設置場所
坂道や段差がある場合
- 擁壁(ようへき)の上下:コンクリートの壁の上端や下端
- 階段の段差付近
擁壁とは、土地の高低差を支えるためのコンクリートの壁のことです。例えば、あなたの土地が隣地より1m高い場合、その境界部分に作られたコンクリートの壁が擁壁です。
農地や空き地の場合


- 用水路やU字溝の脇
- 農道の入り口付近
- 畑の畔(あぜ)の角
効果的な探し方のコツ
系統的に探す
境界標・印を探すときは、やみくもに探すのではなく、以下の順番で系統的に探すことをおすすめします:
- まず道路境界から:一番見つけやすい道路沿いから開始
- 隣地境界へ移動:道路側で見つけた境界標を基準に、隣地との境界を探す
- 奥側の境界:最後に一番奥の境界線を確認
隣地との間にあるフェンスやブロック塀は、境界線上または境界線付近に設置されている場合がおおいですね。地面ばかり見てるとフェンスの上に境界印があったりするので、びっくり!なんてこともありますよ(^o^)丿


道具を活用する
あると便利な道具
- 小さいスコップ:土を掘ったり草を除いたり
- 小さなほうきや刷毛:草や土を払って確認
- メジャー:見つけた境界標間の距離を測定
- スマートフォンのカメラ:見つけた境界標の記録用
境界標・杭があいまいで起こる問題
境界があいまいなまま放置していると、様々な問題が発生する可能性があります。
1. 隣地とのトラブル
植栽や構造物の越境問題
境界があいまいだと、知らないうちに隣地に越境してしまうことがあります。

よくある越境例
- 庭木の枝…成長した庭木の枝が隣地に伸びている
- 屋根の雨樋…隣地の上空に雨樋が出ている
- ブロック塀…境界線を越えて塀を設置してしまった
2. 不動産取引での問題
売買契約の遅延・中止
土地や建物を売却する際、境界があいまいだと大きな問題となります。
相続した土地を売却しようとしましたが、購入希望者から「境界がはっきりしない土地は買えない」と断られ、急いで境界確定測量を行いましたが、測量期間中に購入希望者は他の物件を選んでしまい、売却機会を逃してしまう場合もあります。
売買価格への影響
- 価格の減額…境界不明な土地は相場より安く取引される場合がある
- 売却期間の長期化…境界確定に時間がかかり売却が遅れる
- 購入者からの敬遠…リスクを嫌って購入希望者が減る
3. 相続時の問題

- 遺産分割の困難… 複数の相続人で土地を分割する際、境界があいまいだと分割が困難になります。
- 分割協議の長期化…境界確定まで遺産分割協議が進まない
4. 建築・リフォーム時の問題
- 建築確認申請の遅延 …新築の際、建築確認申請で境界の明示が求められます。
- 設計変更の必要性 …境界確定の結果、当初の設計では建築基準法に適合しないことが判明するケースがあります。
- 設計の変更…建物の位置や大きさを変更する必要
- 追加費用…設計変更により建築費用が増加
- 工期の延長…設計変更により完成が遅れる
5. 日常生活での問題
- 近隣関係の悪化 …境界があいまいだと、日常的な小さなトラブルが積み重なり、近隣関係が悪化することがあります。
- 駐車場の使用…車が境界を越えて駐車している
- ゴミ置き場…ゴミ置き場がどちらの土地に設置されているかわからない
- 子供の遊び場…子供がどこまで遊んでいいかわからない
まとめ

土地の境界があいまいなまま放置していると、近隣トラブル、不動産取引の問題、相続時の争い、建築時の遅延など、様々な問題が発生する可能性があります。
境界の問題は、あなたの大切な財産と平穏な生活を守るための重要な課題です。一人で悩まず、適切な専門家のサポートを受けながら、確実に解決していきましょう。
そして、このブログがお役に立てれば幸いです
静岡中部で、土地・中古住宅・マンション・建売住宅の購入、不動産売却をお考えの方へ
無料相談では、あなたの具体的な状況に合わせたアドバイスや、見落としがちなポイントをお伝えします。『まだ検討段階だから…』という方も大歓迎ですので、お気軽にご相談ください。
(もちろん、しつこい勧誘や営業は一切しませんのでご安心ください\(^o^)/)





